NEW MAYER LODGE, BOZI DAR

Set within the mountainous landscape of Boží Dar, at the Czech-German border, this new mixed-use building rises from the memory of the former Mayerova chata — a beloved early 20th-century lodge that once welcomed travelers before it was lost to fire in the 1960s. Echoing its material presence and quiet dignity, the new design pays homage to what was, while shaping what might come.

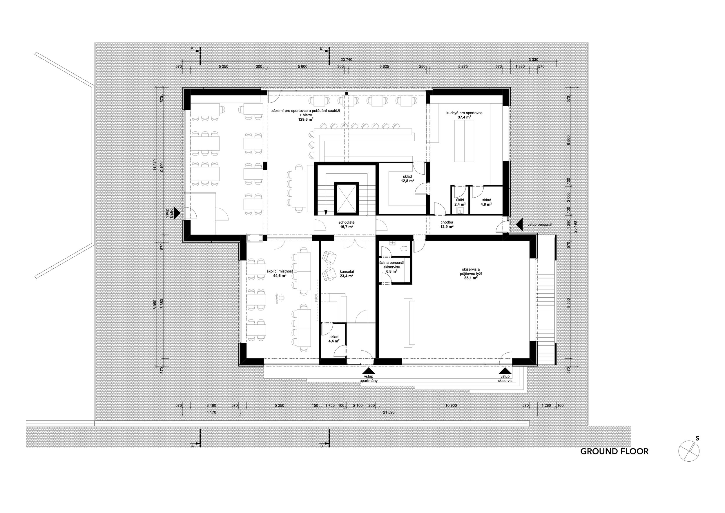
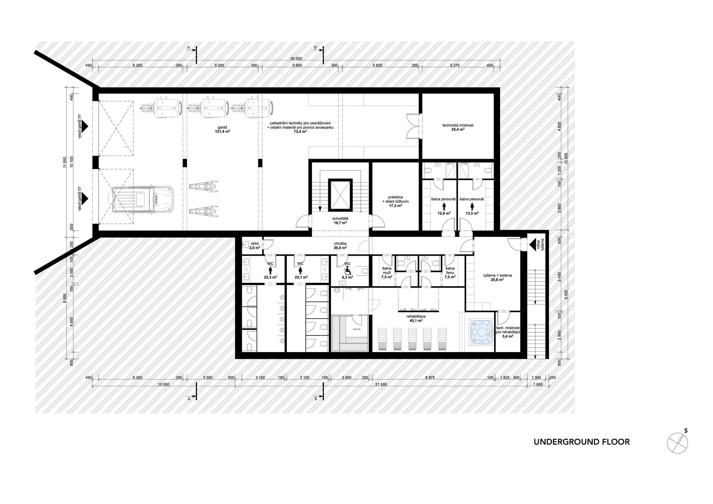
The building is conceived as a contemporary mountain basecamp — a place for rest, training, and recovery. It houses short-term accommodation for athletes, storage spaces, a rehabilitation zone, a training room, a lounge with kitchenette that can also serve as a modest bistro, and a ski service with rental facilities.

Thoughtfully positioned near cycle paths and cross-country ski trails, and easily accessible from the Boží Dar–Oberwiesenthal road, the building stands as a visible and welcoming anchor. More than a collection of services, it re-establishes a cultural and functional presence where Mayerova chata once stood — a quiet continuation of a local legacy.

Previous
Previous

KADAN