KALIBRA Vision Lab

This project envisions a three-storey innovation center for KALIBRA, located near the center of one of Karlovy Vary’s outer districts. Rather than standing in an industrial zone, the building connects production with everyday urban life. It expands the company’s facilities while opening space for development, dialogue, and light.

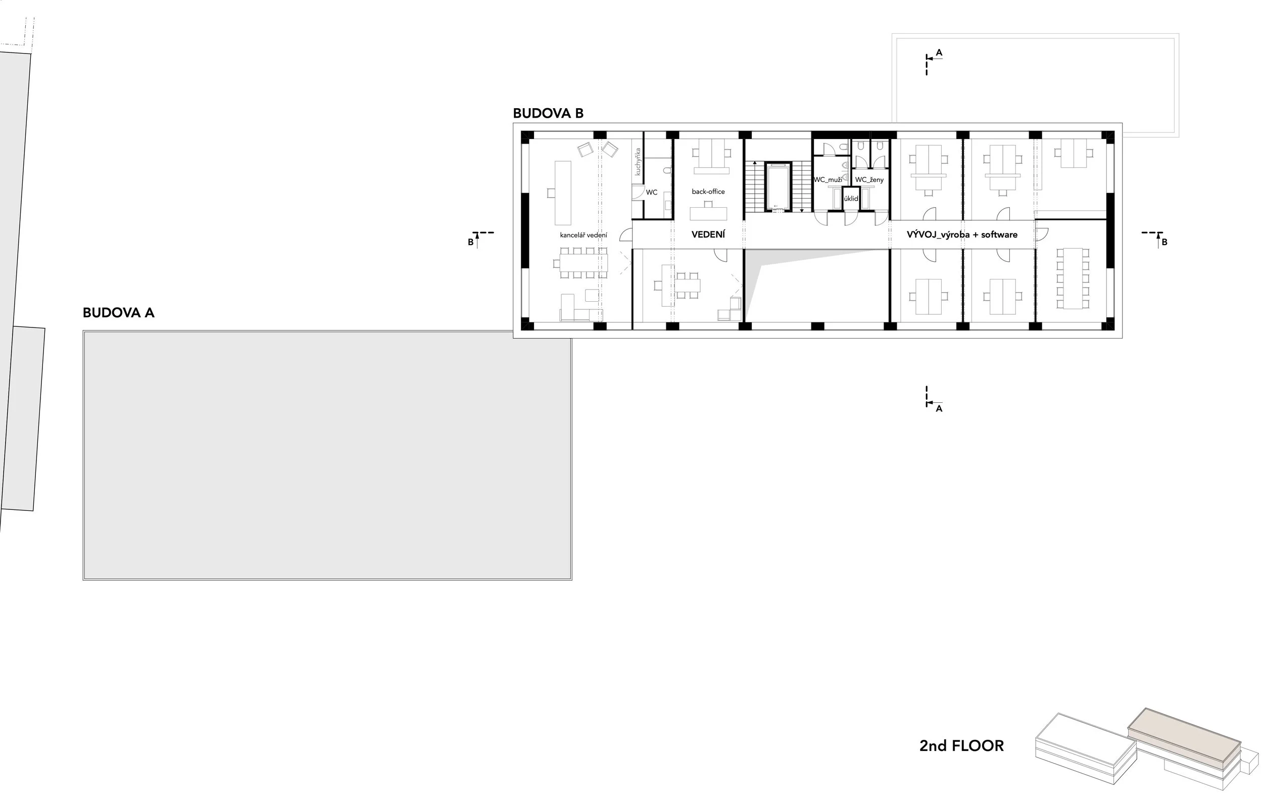
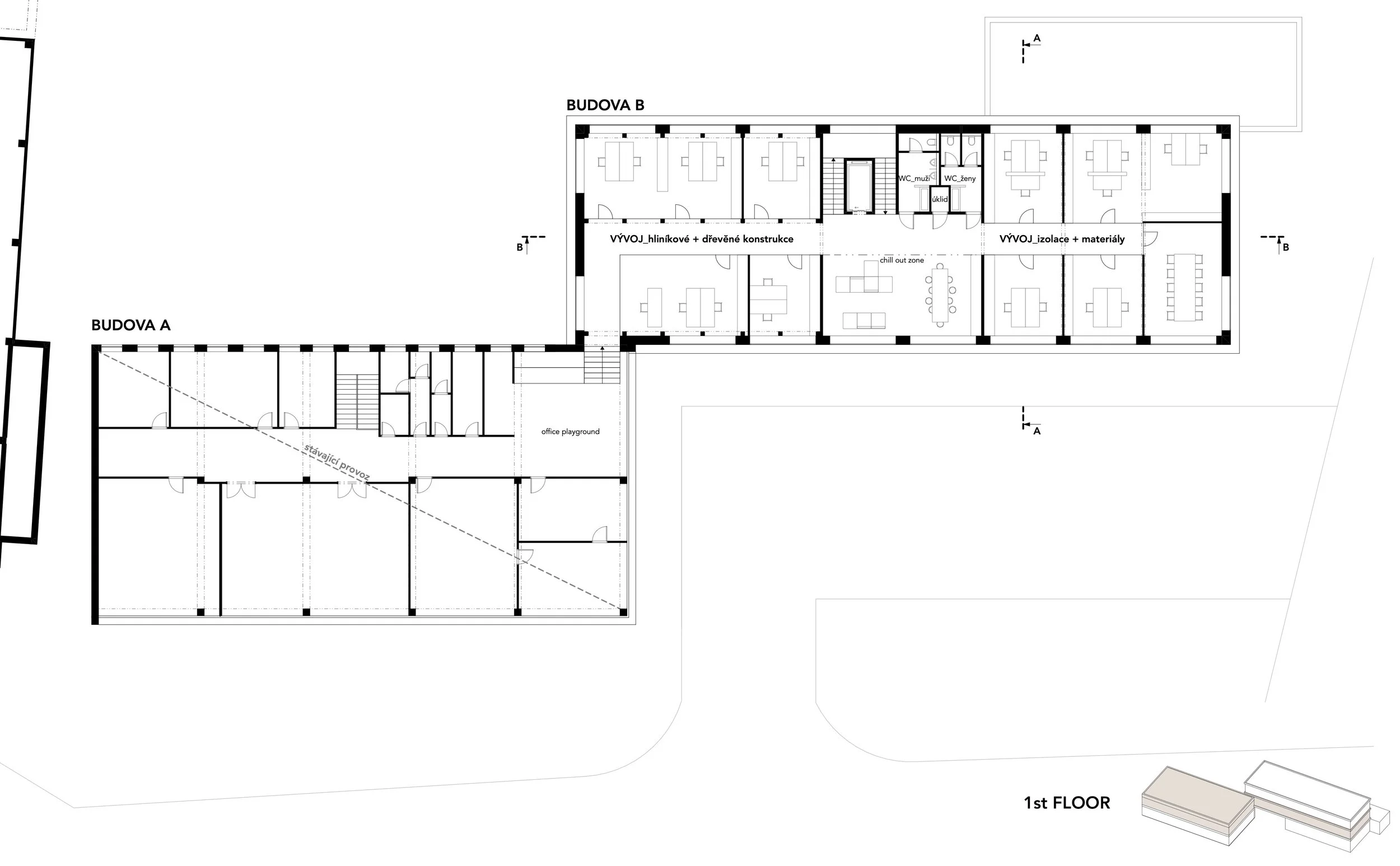
The ground floor includes a reception and a multipurpose hall for dining and events. A café facing the street is designed to serve both employees and the local community. A central drive-through passage links the front of the building with the production area behind. The upper floors host the company’s development center, with workspaces, meeting rooms, and support zones, connected to the existing office wing via a glazed corridor.

The architectural concept balances solidity and openness. A concrete base supports aluminum-clad upper floors, softened by horizontal greenery bands. Large windows provide natural daylight and visual openness.

The building is a hybrid timber structure: while the ground floor and core are made of reinforced concrete, the remaining structure uses CLT and GLT. This system ensures structural and fire safety while supporting sustainability and a warm material atmosphere.

Previous
Previous

PRAGUE 5, STRAKONICKA

Next
Next

PRAGUE 1, INTERIOR DESIGN