CESKE BUDEJOVICE, MASNE KRAMY

INTERIOR REDESIGN (COMPETITION 2024 - FIRST PRIZE)

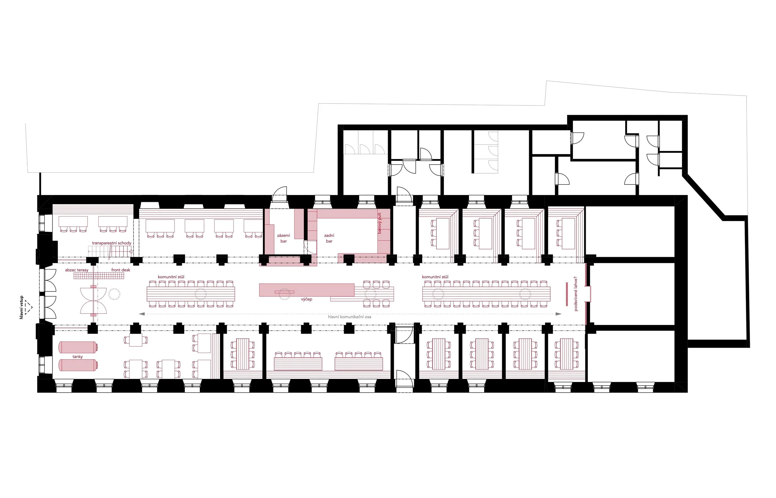
The interior redesign of Masné krámy brings a contemporary layer to a historic beer hall in the centre of České Budějovice. The concept respects the strong identity of the place — its long vaulted hall, social atmosphere, and Budvar heritage — while improving spatial clarity and comfort.

The proposal restores the open longitudinal layout, introducing new seating organisation, a bar connected with social sitting, and visible stainless-steel beer tanks as a central feature. Materiality is built on solid oak, raw steel, brick and naturally aging surfaces that develop patina over time.

A refined and atmospheric lighting concept highlights arches and structure, reducing visual noise and strengthening authenticity. The redesign aims for a timeless interior that grows in character with use, supporting both everyday visitors and long-standing community spirit.

COLLABORATION: ORCHITEKTI

Previous
Previous

LAZNE TOUSEN

Next
Next

LAZNE TOUSEN, IMMEDIATE USE OF OLD FACTORY